
쇼핑 랜드스케이프, 2022 -
· 강동구, 서울, 대한민국
· 복합상업시설 신축설계
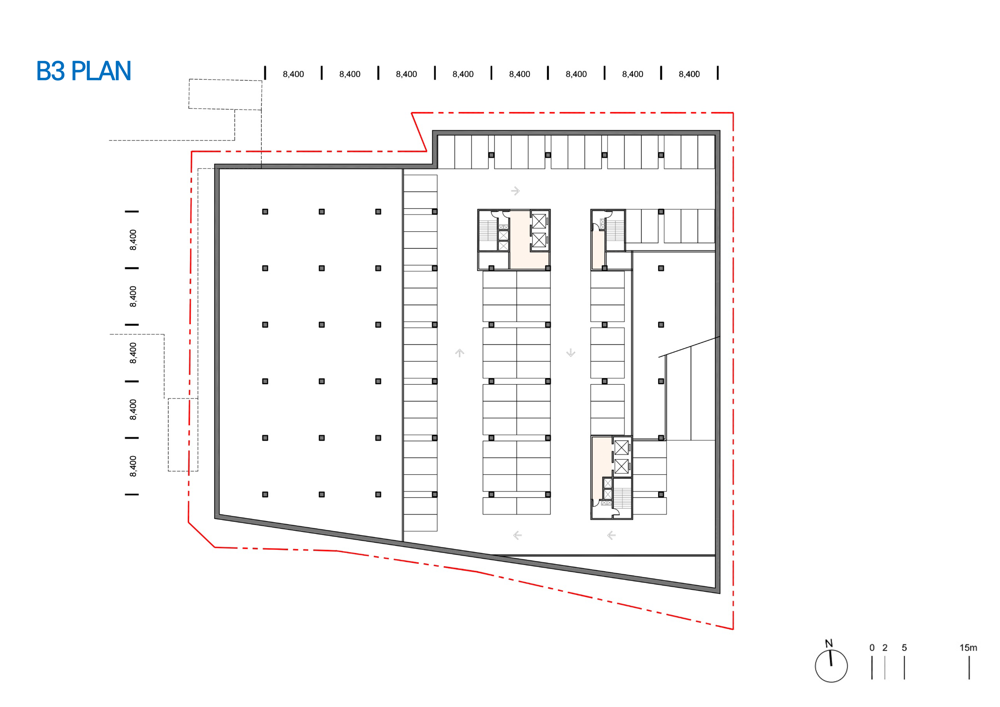
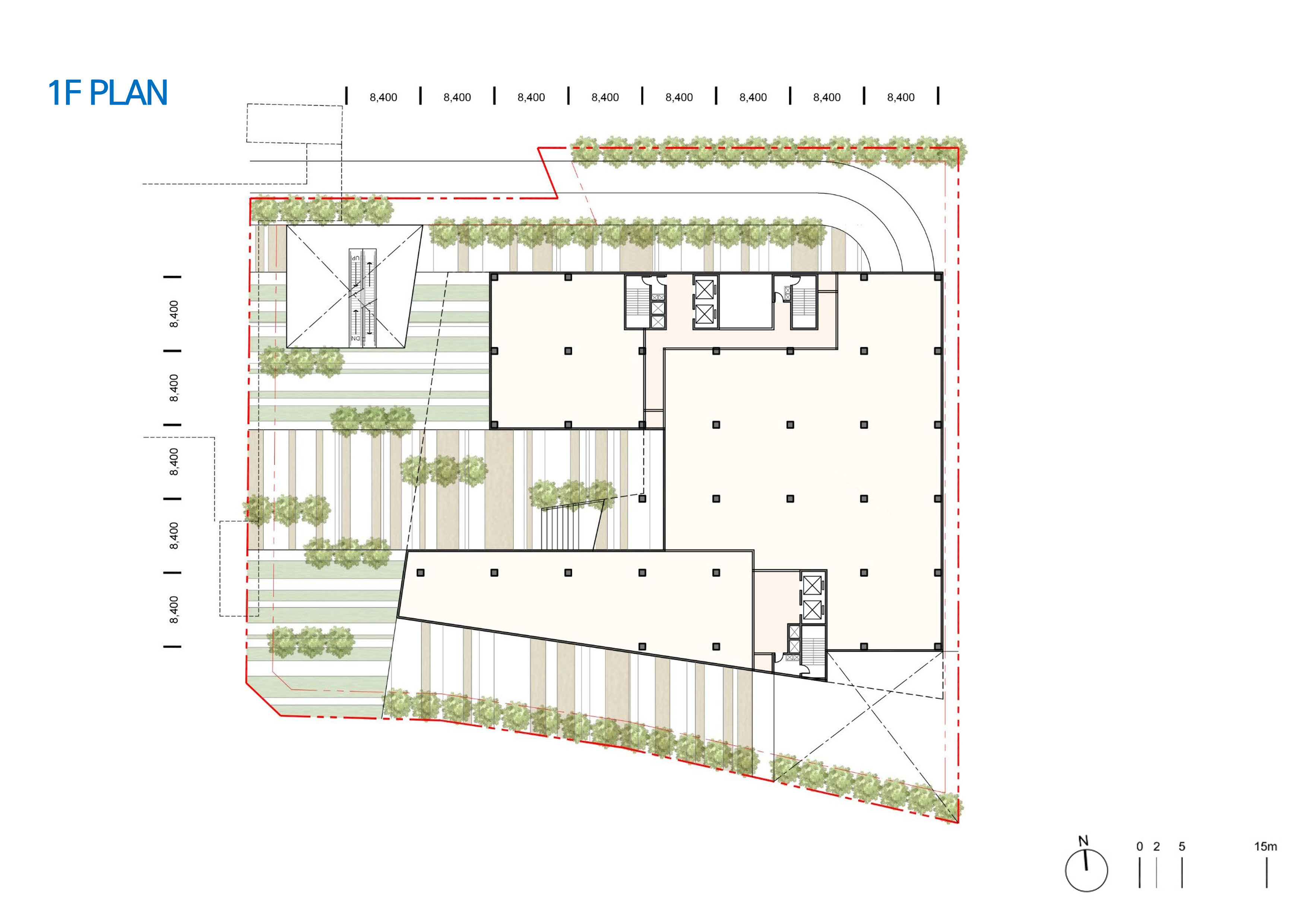
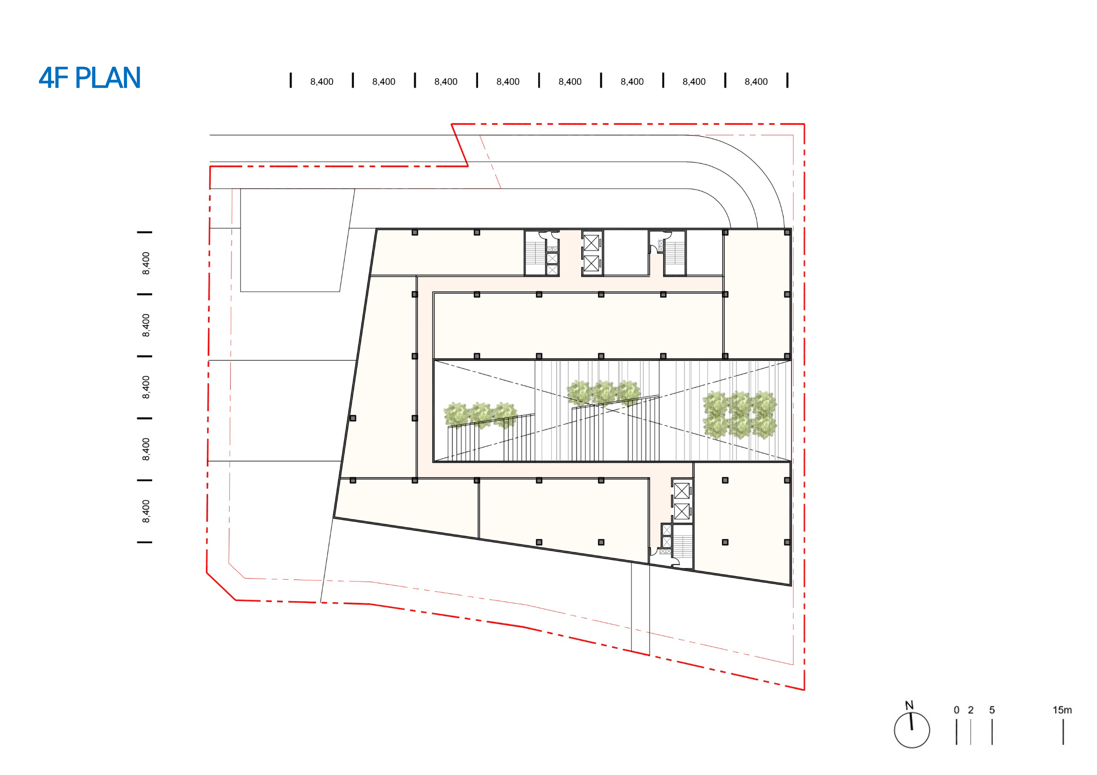
명일동은 서울의 대표적 배후주거지역으로 대지는 지하철 5호선 명일역 사거리 북동측에 위치한다. 토지주는 오랜 시간 개발되지 않고 방치되었던 대지에 복합상업공간을 조성하여 지역의 랜드마크이자 명소를 만들길 원했다.
대지 북측으로 인접한 래미안 솔베뉴는 강동구의 대표적 재개발 단지다. 인접 단지들 또한 부동산 가격 상승에 힘입어 고급 아파트로 개발되었고 명일동 일대 생활수준 또한 비약적으로 향상되었다. 그러나 대지의 나머지 3면에 접하는 기존 상권은 대부분 5층 미만 노후 근린상가들이다. 눈이 높아진 소비자들의 욕구를 만족시키기엔 너무 작고, 허름했다.
대지에 새롭게 들어설 복합상업시설은 이러한 지역사회의 수요를 충족시킴과 동시에 지하철역 사거리에 인접한 광장으로서 공공성까지 확보하여 더 풍요로운 도시공간을 만들어내야 하는 필요성이 자명해 보였다. 번화한 상업지역이 아니기에 계획대로 대규모 상업시설이 들어설 때의 주변 도시와 가로풍경에 대한 태도가 고민의 시작이었다. 그렇기에 명일동 복합상업시설은 스스로 돋보이고 도드라지는 건물(architecture)이기보다는 주변 도시와 조화하는 새로운 풍경(landscape)으로 작동하길 원했다. 풍경으로서의 건축(architecture as landscape)이다.
Shopping Landscape, 2022 -
· Gangdong-gu, Seoul, Korea
· Shopping Complex
















