
라이프 프레임, 2025
· 양천구, 서울, 대한민국
· 신월2동 주민센터 설계공모, 2위
Life Frame, 2025
· Yangcheon-gu, Seoul, Korea
· Proposed a public community service facility
· 2nd Prize
--
LIFE FRAME, 삶을 담는 틀
신월2동은 예로부터 자연 촌락을 형성하여 주민들이 살았던 곳으로, 서남부 교통 요지임에도 불구하고 낙후된 도시환경으로 인해 발전이 정체되어 있다. 대상지 주변 또한 좁은 골목과 소규모 주택들로 인해 열악한 상황이다. 이에 제안하는 새로운 주민센터 ‘LIFE FRAME’은 단순한 행정시설이 아닌 주민과 공유하는 공공공간으로서 도시에 새로운 활력과 공간적 가능성을 제시한다. 이것은 존치 혹은 재개발의 흑백논리를 넘어, 최소한의 개입만으로 도시 생활을 바람직하게 이끄는 ‘도시침술(Urban Acupuncture)’로서 작동할 것이다.
1. 대지현황분석
대상지는 공영주차장으로 20년 가까이 사용되었던 곳이다. 오랜 시간 도시의 보이드(Void)였던 자리에 건물이 들어섬에 따라 인접 주거지의 채광, 프라이버시, 소음 등 영향 뿐 아니라 과도한 볼륨에 의한 심리적 압박감까지 예상된다. 이에 계획안은 주변 주택의 향, 세대평면, 창문위치, 이격거리 등을 면밀히 살피고 주어진 볼륨을 최소한으로 인지하게 만드는 제안이 절실하다.
2. 기본계획방향
주민센터는 필연적으로 주민의 삶과 가장 가까이 있어야 하는 건물이다. 동시에 가까운 주택과의 상호 프라이버시를 지키면서도 채광, 환기의 기능까지 확보해야하는 모순적인 상황이다. 이에 제안하고자 하는 ‘LIFE FRAME’ 개념은 ‘주민의 삶을 담는 틀’로서 새로운 공공건축의 전형을 제시하고 기능을 충족하면서도 인접한 주거환경에 대한 존중과 배려를 담아내고자 한다.
2-1. 주변 도시조직을 존중하는 건물
대상지 면적은 주변 도시조직 대비 약 4배 크다. 저층 밀집 주거지역을 존중하여 과도하게 큰 단일 볼륨이 주변 환경을 압도하지 않도록 해야한다. 전체 볼륨을 4개로 분할하여 주변 건물과 비슷한 규모로 보이도록 조정한다. 각 볼륨의 사이에는 테라스와 보이드를 두어 도시 풍경을 건물 내부로 끌어들이고 도시 가로와 소통하는 외부공간으로 작동하도록 계획한다.
2-2. 길이 연장된 마당과 마루
길의 흐름을 자연스럽게 대상지 내부로 끌어들여 연결한다. 1층의 민원실과 상담실은 가로를 향해 열어 확장될 수 있으며 마당에 정원과 벤치를 두어 주민쉼터로 개방한다. 2층의 북카페와 전시실은 전면의 마루와 외부계단을 통해 길에서 직접 인지하고 출입할 수 있다. 마당과 마루는 ‘도시의 테라스(Urban Terrace)’로서 도시를 향해 항상 열려 있는 공간이다.
2-3. 교류를 촉발하는 입체적 공간들
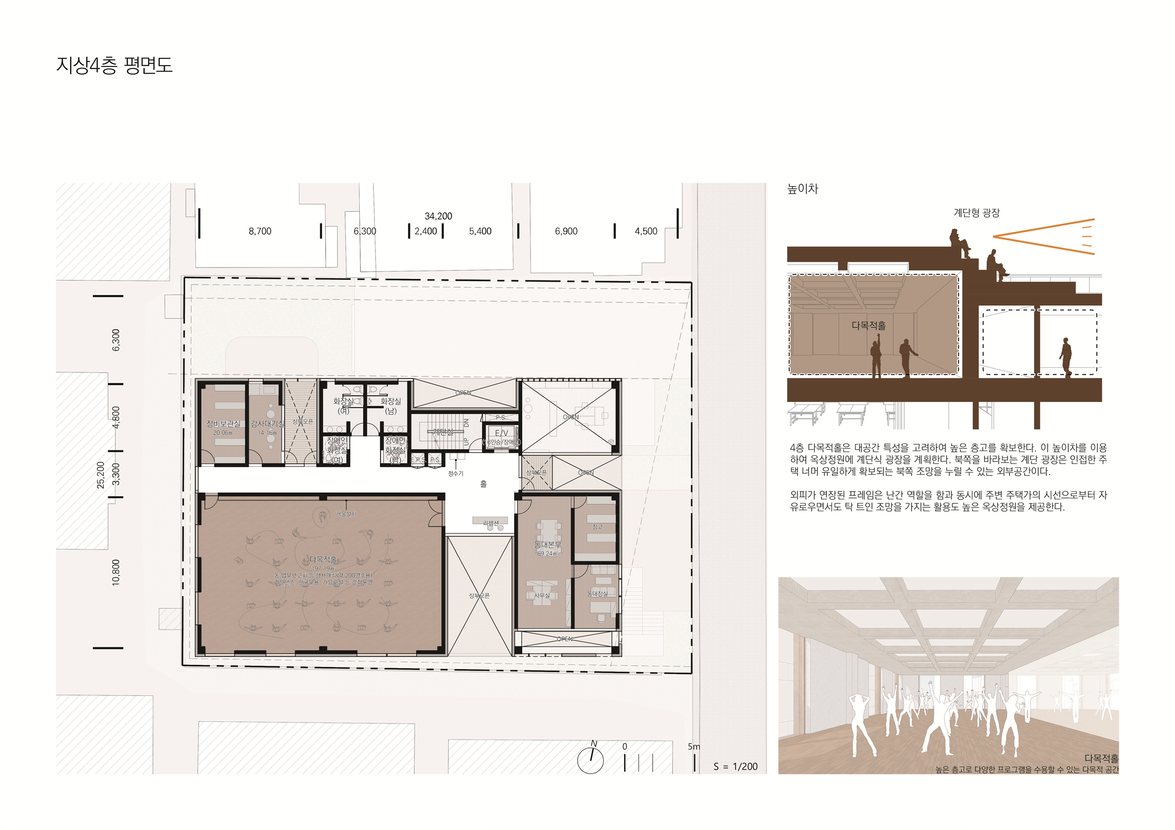
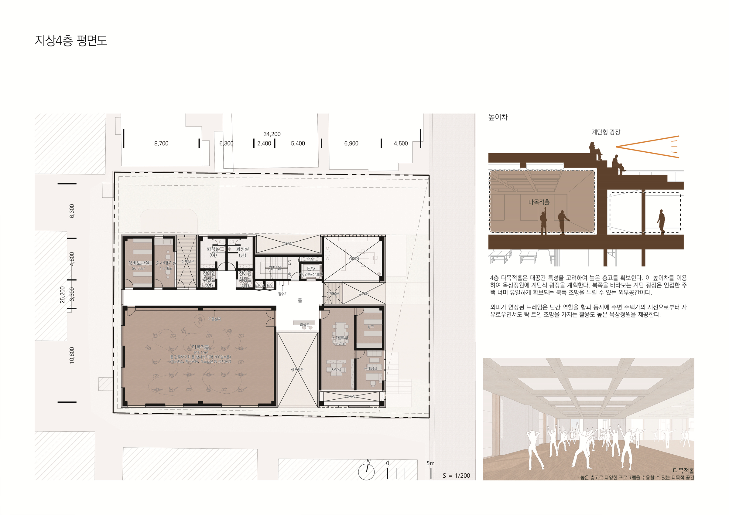
총 4개의 층은 3개의 보이드(Void)를 통해 전체가 유기적으로 연결된다. 민원실(1층)~북카페(2층) 보이드는 민원인과 북카페이용객이 서로를 자연스럽게 인지하고 찾도록 유도한다. 주민쉼터(2층)~강의실(3층) 보이드는 탁트인 공간감과 각 층에서 출입을 연계한다. 주민자치공간(3층)~다목적실(4층) 보이드는 창의적 공간감을 형성하며 모두에게 열린 주민공간을 상징한다.
2-4. 인접 주거지를 배려하는 계획안
상부 매스의 바깥쪽을 감싸는 프레임은 인접한 주거지와 주민센터의 관계를 규정한다. 프레임 사이 채광창의 위치는 인접한 주택의 창문 위치를 면밀하게 고려해 결정되었다. 연계하여 외부 테라스 형태로 삽입된 공간적 ‘켜’는 상호 프라이버시를 유지하면서도 공간적 가능성을 제안한다. 옥상까지 연장된 프레임은 난간이되며, 주변을 의식 않고도 자유롭게 옥상정원을 이용케 한다.













