
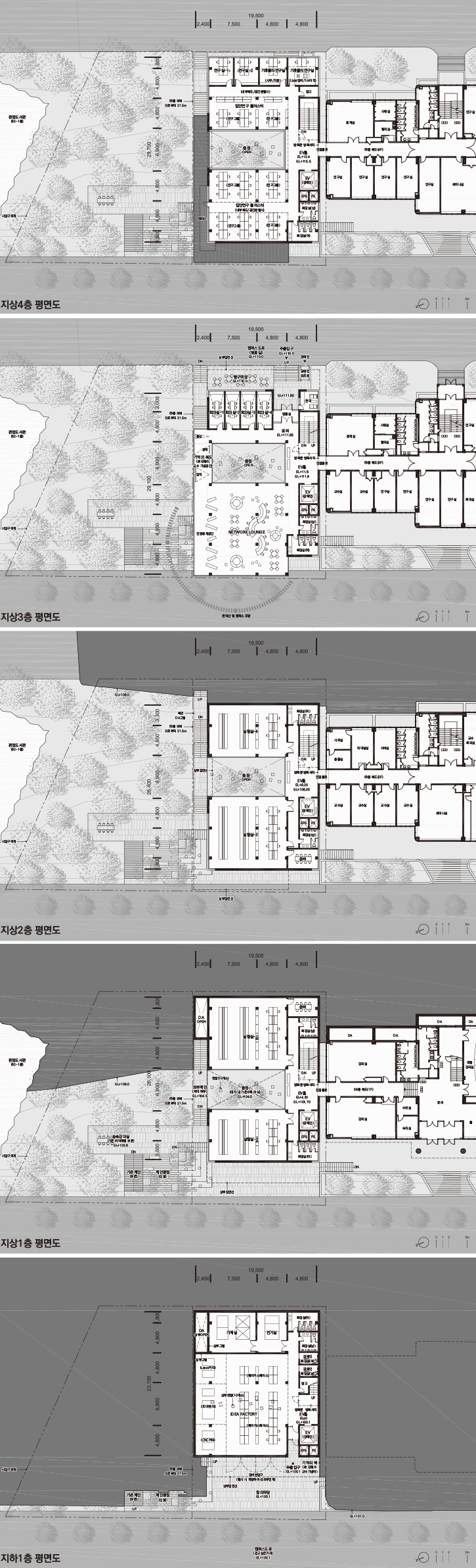
흑체복사, 2022
· 서울대학교, 서울, 대한민국
· 서울대학교 물리천문학부 故 김철수 교수 기념관 설계공모
Black Body Radiation, 2022
· Seoul National University, Seoul, Korea
· Proposed a memorial and student service facility






흑체복사, 2022
· 서울대학교, 서울, 대한민국
· 서울대학교 물리천문학부 故 김철수 교수 기념관 설계공모
Black Body Radiation, 2022
· Seoul National University, Seoul, Korea
· Proposed a memorial and student service facility




